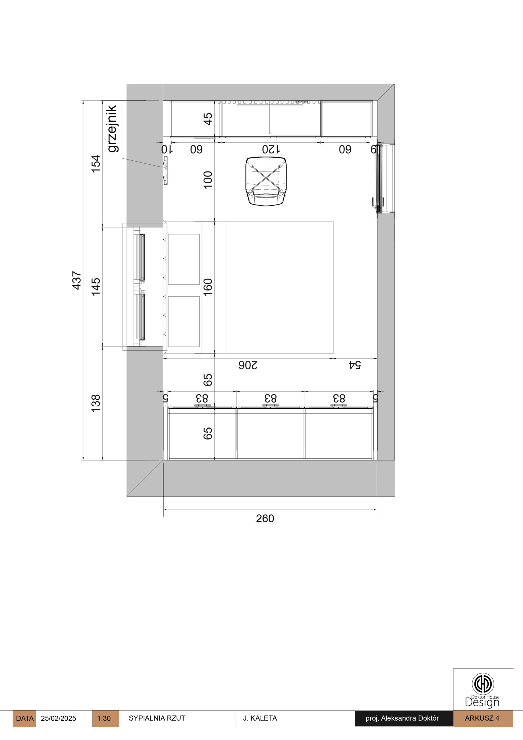
sypialnia
rysunki
<< wróć
komunikacja
pokój córki
sypialnia
salon